Выбор профильной трубы
Для постройки качелей сваренных из металла используются уголки, круглые трубы, тавры. Но чаще выбирают профильные трубы, так как они, по сравнению с другими видами металлопроката, обладают следующими преимуществами:
- удобная для работы форма;
- стенки образуют ребра жесткости, что повышает прочность;
- стойкость к механическим повреждениям.
Из недостатков следует отметить:
- сложность сгибания, без специального станка не обойтись;
- необходимость качественной защиты от коррозии.
Для изготовления элементов качелей применяются профили различной формы:
- из овальных труб делаются гнутые детали, например сиденья, арки, подлокотники;
- квадратный и прямоугольный профиль используется для изготовления элементов с большой нагрузкой — стоек и распорок;
- из плоских труб делаются вспомогательные детали.
Установка каркаса
Если планируется делать стационарные качели для ребенка, то ноги конструкции нужно забетонировать. Для этого на земле делают разметку по точкам расположения опор. Буром или лопатой выбирают грунт на 60 см. Дно ям уплотняют и насыпают туда песчаную подушку. Её толщина 5-7 см. Песок также хорошо трамбуют.
После этого качели устанавливают в ямы, загружают туда немного бута.
Замешивают раствор из цемента, песка и щебня в соотношении 1:3:6. Смесь доводят водой до консистенции в меру густой сметаны.
Раствор заливают в ямы, контролируя ровность рамы.
Для справки: бетон сохнет примерно 3-4 дня.

Как сделать садовые качели из профильной трубы своими руками
Когда подготовлен материал, определен тип конструкции, приступают к ее изготовлению. Под рукой всегда должен лежать чертеж качели из профильной трубы с размерами, так как он нужен для нарезки заготовок.
Инструкция пошаговой сборки:
- Согласно чертежу из профильной трубы нарезают заготовки. Понадобятся длинные элементы для стоек, одна перекладина. Из трубы меньшего сечения нарезают необходимое количество перемычек.
- Когда все заготовки будут отрезаны, начинают собирать каркас. Первым делают узел, где верх опор соединен с перекладиной. Если качели будут разборные, то трубу сверлят, соединяют болтами. Для прочности углов ставят распорки. Их можно закрепить саморезами по металлу.
- Если предполагается неразборная конструкция, то придется сварить качели из профильной трубы своими руками с помощью сварочного аппарата. Швы для эстетичности зачищают болгаркой.
- Готовый каркас из трубы устанавливают на постоянное место. Если предполагается бетонирование опор, то под каждую стойку выкапывают лунку. На дно ямы насыпают слой щебенки толщиной 20 см. Опоры распирают внутри лунки камнями, заливают жидким бетоном.
- На перекладине размечают места расположения подвижных узлов. Под анкера в трубе сверлят отверстия. Резьбовое соединение обязательно закрепить дополнительной контргайкой. Она предотвратит ослабление крепежа во время эксплуатации качели.
- Чтобы получать удовольствие от катания на качели под дождем или солнцепеком, понадобится крыша. Раму сваривают в форме прямоугольника из тонкой трубы. Чтобы не скапливались осадки, плоскую крышу крепят под уклоном. Симпатичнее смотрится полукруглое укрытие. Из трубы придется согнуть дуги. Для этого используют не квадратный, а плоский профиль. Такую трубу проще сгибать и легче крепить к ней кровельный материал.
- Сиденье одиночное или в виде скамейки удобнее с полукруглой спинкой. Для боковых элементов каркаса выгибают две дуги. Между собой их сваривают перемычками. Готовый каркас должен напоминать форму ковша. К четырем углам конструкции приваривают петли. К крепежам будет зафиксирована цепь.
- Когда каркас сиденья будет готов, к проушинам на перекладине крепят цепи. Отмерив нужную длину, отрезают лишние звенья.
- Свободные концы цепей соединяют с проушинами на каркасе сидения, выставляют его по уровню. Если получился перекос, нужный участок удлиняют или укорачивают изменением количества звеньев.
- Когда качели детские своими руками из профильной трубы будут сварены, приступают к оформлению. Из реек делают обшивку сиденья. Деревянные заготовки фиксируют болтами. Каркас обезжиривают, покрывают защитной грунтовкой, красят. В качестве кровельного покрытия хорошо подойдет цветной поликарбонат. Лист прикручивают саморезами с уплотнительными шайбами.
Готовое развлечение немедленно стоит опробовать.
На видео пример изготовления качели:
Шарикоподшипники для обустройства качели
С помощью шарикоподшипников можно создать сооружение, которое будет служить не один десяток лет. Применение этих элементов в конструкции исключает трение, что определяет долговечность таких сооружений, избавляя также от появления скрипа.
Известно, что качели в виде буквы А – это наиболее оптимальная конструкция, однако она занимает много места. Мы же рассмотрим установку П-образных устройств, устойчивость которым придает собранная опора.
Для работы понадобятся:
- труба диаметром около 70 мм, необходимая для установки основных элементов конструкции;
- уголок 20 мм для вспомогательных стоек;
- уголок 40 мм для раскосов;
- уголок 63 мм для фиксации перекладины.
После этого можно переходить непосредственно к установке запланированной конструкции, что предполагает следующий набор действий:
- Копаем в соответствии с разметкой 6 ямок глубиной не менее 70 мм.
- Выставляем столбы-опоры строго вертикально с использованием строительного уровня. Все части конструкции, которые будут закапываться в землю, желательно обмазать битумной мастикой.
- Привариваем горизонтальную опору из уголка 63 мм.
- В ямки по периметру устанавливаем элементы Г-образного сечения и привариваем их к горизонтальной направляющей.
- Заливаем в ямки бетон.
- Переходим к сборке узла на основе подшипников.
Для монтажа частей опоры используется металлическая лента толщиной 3 мм, которую требуется загнуть. Затем в подшипники вставляется труба и немного обваривается с учетом того, чтобы не задеть сами элементы опоры, так как это может привести к выходу их из строя. Закрепление подшипников на ленте осуществляется посредством отрезков уголков, которые привариваются к узкой полосе.
Опорные столбы и качающиеся части сооружения должны отстоять друг от друга на расстоянии не менее 50 см. Такая необходимость вызвана требованиями безопасности, чтобы рука ребенка не попала между этими элементами.
На заключительном этапе сборки остается только приварить остальные части конструкции, включая раскосы, которые должны быть достаточно короткими, чтобы уменьшить габариты собираемого устройства. Устойчивость конструкции в данном случае сохраняется за счет наличия достаточного числа точек опоры и использования трубы 70 мм.
Изготовление качели из металла для дачи
Чтобы сделать качели из металла своими руками для дачи, берут уголок, круглые трубы или тавры. Мастера предпочитают профильную трубу, как прочный и надежный материал.
Применяют:
- профиль квадратный или прямоугольный для стоек, распорок;
- овальный для гнутых элементов;
- плоский – для вспомогательных деталей.
По фиксации различают стационарные и переносные изделия. В первом случае устройства ставят на бетонированные стойки, во втором – опоры крепят к раме, заглубленной в грунт. Переносные железные качели удобны, если на зиму их убирают в дом.
Конструкцию выбирают в виде букв «А», «П», для переносных изделий применяют Л-образные опоры. Сиденья подвешивают на хомуты, анкерные болты или шариковые подшипники. Детали для навешивания проверяют на прочность, смазывают.
Необходимый инструмент и расходные материалы
Чтобы соорудить металлические уличные качели для дачи своими руками, пригодятся:
- сварочный аппарат;
- электроды 2,6 мм;
- профильные трубы шириной стенки 40-70 мм, толщиной 1-2 мм для сооружения стоек, перекладины;
- брус деревянный для лавочки 30х30 мм (сечение может быть больше или меньше);
- тросы, цепи;
- 6 рым-болтов с шайбами, гайками для фиксации;
- краска, лак.
Чертежи качелей из металла
Продумывая, как сделать сварные качели, исходят из параметров ширины одного посадочного места – не менее 0,5 м на человека. Высота на выбор хозяина, а между опорами и скамейкой оставляют расстояние в 35 см для веревочного крепления, 25 см для цепного.
Простой чертеж выглядит так:
Пошаговая инструкция по сборке
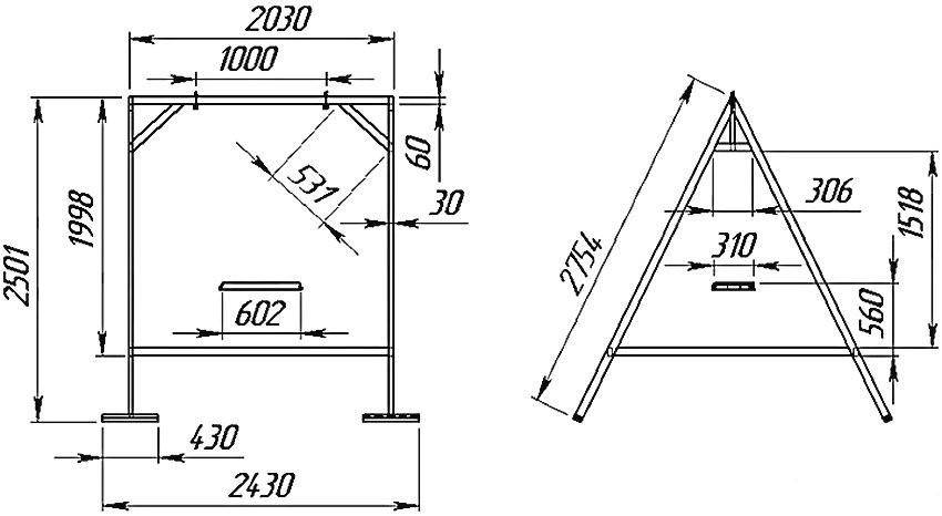
Как сделать сварную конструкцию А-образной формы:
- Нарезают 4 трубы по 2,5 м для стоек. Перекладины делают по 2,1 м.
- Обрезают края трубы под углом в 30 градусов, сваривают попарно в форме равнобедренного треугольника.
- Откладывают от вершины 2 м, приваривают горизонтальную перемычку длиной в 1,038 м.
- К вершинам стоек, разведенных на 2 м, приваривают горизонтальную перекладину так, чтобы концы выступали с обеих сторон на 5 см.
- Нарезают брус для скамейки, ошкуривают, лакируют, сушат.
- Деревянный брус крепят к каркасу сиденья. Фиксация на болты с шагом от 2 см.
- Сиденье навешивают на перекладину. Крепят на рым-болты, предварительно просверлив в перекладине отверстия.
Чтобы поставить взрослые или детские качели для дачи своими руками, делают так:
- роют 4 ямы глубиной до 50 см;
- делают бетонную смесь из готового порошка или цемента, воды, песка (1:2:3);
- на дно ям насыпают песок слоем до 10 см;
- ставят опоры;
- пространство между опорами и грунтом засыпают камнями и заливают бетоном;
- дают бетону высохнуть минимум 3-4 дня.
После просушки раствора конструкцию тестируют, окрашивают.
Изготовление навеса для летней качели
Полог или навес защитит от солнца, дождя. Самый простой вариант – натянуть на конструкцию тканый материал в виде маркизы. Такие применяют, устанавливая диван качели для дачи. Рейки держат плотную ткань, не давая ей сместиться.
Второй вариант – лист поликарбоната с фиксацией на металлопрофиль. Форму определяют боковые части навеса – классическая в виде пирамиды или полукруглая. Для второго вариант профиль гнут трубогибом.
Для сооружения навеса поперечные планки профиля фиксируют к основным балкам сваркой или болтами. Затем на деревянную раму натягивают полотно, фиксируют лист поликарбоната (на прессшайбы, болты). В конструкции верху качелей делают отверстия, фиксируют навес.
Второй вариант изготовления качели
Столбы
Для большей надежности боковины конструкции рекомендуется выполнять в виде буквы А. Но также каркас можно собрать из одинарных изделий, служащих для опоры, а требуемой устойчивости ему придают уголки, устанавливаемые внизу. Наиболее распространенным считается вариант, когда сначала сваривают основание из труб в виде прямоугольника, к которому крепят два треугольника, устанавливаемых вертикально, и перемычку, добиваясь тем самым визуального соответствия букве А. Если исключить металлическое основание, превращающее устройство для качания в передвижную конструкцию, необходимо позаботиться о бетонировании стоек.
Перекладина
Установленные треугольники дополняются перекладиной. Созданная таким образом конструкция фиксируется с помощью подготовленных траншей или ям, соблюдая выравнивание в обеих плоскостях. Затем углубления заливаются бетоном, которому требуется дать некоторое время для полного затвердевания.
Сиденье
Качели, ориентированные на взрослых, преимущественно имеют вид стандартной скамейки без ножек. Если же подобное устройство предназначается для детей, рекомендуется установить одноместное или двухместное сиденье.
Цепи
Несмотря на то что обустройство подвесов из цепей является дорогим удовольствием, это обязательно требуется сделать, поскольку подобные конструкции отличаются максимальной прочностью, способствуют раскачке и обусловливаются ярко выраженными признаками изнашивания, что позволяет вовремя заметить критический износ. Если качели ориентированы на детей, следует подвешивать мелкокалиберные цепи для исключения вероятности защемления пальцев.
Покраска
Окончательная сборка конструкции должна завершаться нанесением специального состава. Это делает собранное устройство более привлекательным и защищает его от коррозии.
Преобразователь ржавчины
Для предотвращения разрушения металлов применяется преобразователь ржавчины, нанесение которого обеспечивает формирование барьерной пленки на пути агрессивного воздействия среды. Обычно этот состав наносится на металл до покраски.
Какие бывают качели для дачи?
На фото качели для дачи
Прежде всего, мастер должен определить, кто будет пользоваться качелями. Можно изготовить изделие для детей или же отдать предпочтение варианту, который подойдет для всей семьи. Также предстоит решить вопрос о том, требуется стационарная конструкция или нужно сделать ее разборной. Наши рекомендации помогут вам с выбором.
Универсальные садовые качели выделяются размерами и конструкцией. Сиденья могут быть длиной до 2 м и оснащаться спинкой. Часто посадочное место изготавливают в виде дивана с мягкими подушками. Стойки садовых качелей массивные, способные выдержать вес нескольких взрослых человек. Конструкцию еще называют качелями для семейного отдыха, т.к. на ней может поместиться вся семья.
Детские качели для дачи отличаются от садовых в основном размерами и грузоподъемностью, но есть и другие различия:
- Конструкцию рекомендуется изготавливать из древесины, чтобы избегать серьезных травм.
- Сиденье оснащается ремнями безопасности.
- Посадочное место располагается низко над землей.
- Для предотвращения кругового вращения сидение качели обязательно оснащают дополнительной рейкой от углов конструкции к поперечной балке.
- Уличные качели для детей устанавливаются на специальной детской площадке.
- Подвесы сиденья крепятся к перекладине карабинами с защелками. Использование крюков запрещается.
- На качелях не допускается острых углов и граней.
- Детские модели рекомендуется окрашивать в яркие цвета.
Переносные качели пользуются популярностью благодаря возможности перемещения — например, в тень или под навес для защиты от дождя. Самыми устойчивыми считаются модели в форме буквы «А», у которых нижние части стоек соединены дополнительными перекладинами. П-образные качели также можно переносить, но для устойчивости они оснащаются балками, которые утяжеляют конструкцию.
В конструкции подвесных качелей отсутствуют опорные стойки. Они состоят из сиденья и канатов, которые крепятся к любому элементу, выдерживающему вес ребенка. Опорами могут служить ветка дерева, балки перекрытия крытой веранды или крыльца, специальные переносные конструкции. В этом варианте посадочным местом выступает любой предмет, на котором можно сидеть — доска, бревно, небольшая шина и т.д. Канат просто привязывается к посадочному месту и к силовому элементу.
Выбор конфигурации дачных качелей
Как уже говорилось, необходимо определиться со схемой – А-образная, Л-образная (без перемычек), П-образная, Г-образная (с консольным расположением балки для подвеса сидения). После этого определяется положение опор – на грунте или в нем. В первом случае необходимо соединить стойки в жесткую призматическую конструкцию на уровне земли, во втором – увеличить длину опор на величину заглубления (обычно 50…80 см).

При бетонировании или закапывании опор в землю лучше добавить к ним поперечины, как показано на схеме выше – это увеличит устойчивость качели для сада своими руками.
После выбора всех необходимых элементов конструкции проводятся следующие работы:
- нарезка металлопроката на куски нужной длины;
- сварка или скрепление фитингами на болтах стоек;
- сборка конструкции со всеми поперечинами с помощью сварки или болтовых соединений;
- установка изделия на грунте или в грунте (с последующим бетонированием опор или засыпкой и трамбовкой);
- монтаж подшипников или петель для подвеса сидения (это может быть сделано на стадии общей сборки качели садовой своими руками);
- подвес сидения и проверка работоспособности изделия;
- окраска (иной вид покрытия) всех деталей антикоррозионной краской.
Если качели из металла имеют навес или другие дополнительные элементы, то они монтируются на стадии общей сборки. Для навеса последним этапом работ будет установка покрытия (из поликарбоната, дерева или других материалов).
Вариант качели на подшипниках
Разобьем поэтапно процесс работы по обустройству подобного сооружения для качания.
Этап I
Изготовление каркаса. Для этого понадобятся трубы 50 и 63 мм. Сначала собирается П-образная конструкция из двух изделий диаметром 63 мм и длиной около 3 м каждая, к которым горизонтально приваривается цилиндрическая деталь сечением 50 мм. Диагонали получившейся буквы П должны быть одинаковыми.
Этап II
Крепление подшипников. Чтобы установить сборочные узлы, требуется нарезать 5-сантиметровые детали из трубы 90 мм, а затем вставить в них подшипники и обварить, добиваясь сужения диаметра. Это позволяет удерживать части опоры в трубе, что должно быть дополнено привариванием металлических элементов с внешней стороны. После этого в получившуюся конструкцию необходимо вставить трубу 27 мм.
Этап III
Отверстия для подвесов и сварка устройства. К цилиндрической детали 27 мм необходимо приделать с помощью специального аппарата пластины с отверстиями для крепления крючка. Затем собранная конструкция приваривается к перекладине буквы П с использованием небольших плоских элементов
Этот процесс требует осторожности, так как внутри установлены подшипники. Место их монтажа должно быть смазано солидолом, а во время применения сварки следует использовать воду для охлаждения, чтобы исключить повреждение сборочных узлов
Этап IV
Готовая рама устанавливается в подготовленные ямы и бетонируется. Из профильной трубы 20x20x2 мм изготавливается каркас для сиденья, что предполагает применение сварки.
Этап V
Полученная конструкция облагораживается отшлифованными досками, которые крепятся на болты. После чего каркас посредством сварки прикрепляется к цепям, а они в свою очередь подвешиваются на раму. Для этого можно использовать карабины, что позволяет с легкостью регулировать длину цепей.
Разновидность моделей по типу крепления
Садовые качели различаются не только по форме и размерам, но и по типу крепления.
Стационарные
Стационарные качели оборудуются двумя деревянными столбами (или трубами сечением 150-200 мм), которые инсталлируются в землю и бетонируются.
Преимущество заключается в том, что их можно поставить в любом удобном месте. Само по себе подобное сооружение основательное, срок эксплуатации исчисляется многими десятками лет. Может выдерживать значительные нагрузки.
Чтобы поставить брусья, в земле выкапываются два небольших котлована глубиной 1,4 метра, диаметром 45 см. Насыпается мелкий щебень (слой 40 см), хорошо приминается. Один конец бруса обрабатывается праймером, завёртывается в гидроизоляцию, помещается в яму. Затем следует подготовить бетон:
- 5 частей мелкого гравия до 20 мм;
- 4 части песка;
- 1 часть цемента.
Брусья ставятся в яму, центруются с помощью двухметрового уровня, закрепляются, и заливаются бетоном. Следует подождать 2-3 недели, прежде чем подвергать такие опоры какой-либо нагрузке.
Мобильные, подвесные
Такое изделие стоит отдельно и не требует какой-либо дополнительной опоры для подвеса. При этом данную модель тоже можно перемещать в любое место. Конфигурация может быть разной. Качели, которые крепятся с помощью цепей, долговечны. На них можно повесить более массивную конструкцию (выдерживают нагрузку до 300 кг).
Среди недостатков можно выделить следующие нюансы:
- крупные звенья способны причинить травму: если во время раскачивания держаться за цепи, то существует вероятность попадания пальцев между звеньями;
- использование возможно только в нежаркую погоду, потому что звенья нагреваются от солнца.
Садовые качели, которые крепятся с помощью веревки, довольно популярны в использовании, потому что цена такого материала низка, а конструкция с этим креплением очень проста.
Плюсы:
- доступная цена;
- безопасное использование;
- не требует специальной опоры при подвешивании;
- легко отремонтировать.
Минусы:
- недолговечные;
- нельзя подвесить тяжелую конструкцию.
Детские качели для дачи своими руками из металла
Если вы планируете сделать садовые качели своими руками из металла для детей, стоит ознакомиться с подобранными нами интересными вариантами с пошаговым описанием.
Одиночные качели из металла своими руками
В первом нашем мастер-классе мы сделаем своими руками из металла детские уличные качели для одного ребёнка.
Одиночные садовые качели из металла для детей своими руками: чертежи и размеры
Самое главное в детских качелях – их надёжность, поэтому в переносных моделях желательно сделать жёсткую нижнюю раму либо установить их стационарно. В работе можно воспользоваться нашими чертежами с размерами или нарисовать собственный эскиз.
Пошаговая инструкция
Предлагаем вместе с нами сделать своими руками простые детские качели из профильной трубы, для которых нам понадобятся следующие материалы и инструменты:
- 4 трубы длиной 180 см и сечением 40×20 мм, толщина стенки 2 мм;
- 3 трубы для перемычек длиной 70 см;
- аппарат для сварки;
- болгарка;
- шлифмашинка;
- краска, кисточка.
| Иллюстрация | Описание работы |
Более подробно весь процесс можно посмотреть на видео:
Статья по теме:
Садовые качели своими руками: виды качелей и фото, варианты конструкций, качели из разных материалов, характеристики, безопасность, порядок обустройства, что нужно для создания качелей, инструменты и оборудование — в нашей публикации.
Качели своими руками из металла для нескольких детей
Качели для нескольких детей могут иметь одно общее сиденье. Второй вариант – закрепить сидушки для каждого ребёнка на расстоянии друг от друга.
Чертежи качелей из металла для нескольких детей
Существует несколько вариантов чертежей изготовления качелей для двух деток. Можно сделать своими руками конструкцию буквой «П» из металла со скамейкой и дополнительно закрепить ребра жёсткости по обеим сторонам, либо это могут быть А-образные стойки с усилением средней части.
Пошаговая инструкция
Если нет сварочного аппарата, можно закрепить элементы качелей на П-образном каркасе на болтах. Для работы нам понадобится металлопрофиль квадратного сечения со стороной 60 мм и длиной 3000 мм. Поскольку мы будем делать стационарную конструкцию, 50 см уйдёт в землю.
Высота качели получится 2 м, длина горизонтальной перемычки зависит от того, сколько сидений планируется на ней разместить. Один каркас выдержит три посадочных места.
- Предварительно, при помощи специального сверла, высверлить отверстия для крепления.
- Изнутри укрепить отверстия толстыми пластинами из металла.
- Закрепить перекладину на стойках при помощи болтов с контргайками, а также шайбами Гровера.
- Закрепить сидушку на подвесах.
- Забетонировать стойки.
На металлопрофиле длиной 3 м вполне комфортно можно закрепить 2 посадочных места ФОТО: vseprotruby.ru
Статья по теме:
Детские уличные качели для дачи: типы конструкций и используемые материалы, элементы качелей, выбор готовых изделий, самостоятельное изготовление, нюансы установки — читайте в публикации.
Разновидности крепления качелей
Качели могут устанавливаться стационарно на забетонированных в земле стойках и выполняться переносными. Во втором случае опоры прикреплены к раме, которая крепится анкерными болтами или забиваемой в землю арматурой с загибом. Такие конструкции удобны для сезонной дачи, так как легко убираются на зиму в закрытое помещение.
По конструкции опоры бывают А-образными с перемычкой внизу и в форме буквы П. Вторые менее устойчивы, но проще в изготовлении. Однако, при глубоком закапывании с заливкой бетоном, ими можно пользоваться без опасений. Для увеличения устойчивости переносных качелей делаются Л-образные опоры.
Для подвешивания сиденья используются несколько вариантов:
- хомуты с крючками;
- анкерные болты с петлями, вставленные в отверстия, просверленные в верхней перекладине;
- с помощью шарикоподшипников, которые придется регулярно смазывать, чтобы качели не скрипели.
Профильные трубы, соединенные с перекладиной через подшипники, самый надежный и долговечный вариант
Сиденье можно повесить с помощью веревки, троса, цепей, профильных труб. У каждого варианта есть плюсы и минусы. Веревкой просто пользоваться, но она быстро перетирается. Цепь и трос ржавеют в местах соединения и перегиба, даже если окрашены.
Делам сиденье для садовых качелей
Начинаем с каркаса
Из доски 100х50 мм нарежьте восемь прямоугольных заготовок длиной 500 мм — из них будут изготовлены задние стойки (4 шт.) и опоры сиденья (4 шт.).
Используя предложенные ниже чертежи, перенесите на заготовки криволинейные контуры и выпилите необходимые детали. С этой задачей отлично справляется электролобзик. Подготовив первую деталь, используйте ее как шаблон для изготовления трех последующих.
Опоры сиденья — чертеж
Задние стойки — чертеж
Для сборки опор и задних стоек используйте болты с шайбами, располагая их так, как показано на схеме. Для точного позиционирования отверстий лучше сначала совместить две детали и зафиксировать их струбцинами, после этого еще раз проверить точность подгонки и уже потом засверливаться.
Из дюймовки шириной 100 мм вырежьте переднюю царгу длиной 1525 мм и прикрутите ее 75-миллиметровыми саморезами к торцам опорных сборок, как показано на схеме. Сначала зафиксируйте царгу на двух крайних опорах, затем — прикрутите две центральные сборки. Чтобы каркас был собран без перекосов, работайте на ровной поверхности и постоянно проверяйте точность позиционирования всех деталей угольником.
Делаем спинку и сиденье
Когда каркас собран, переходят к сиденью и спинке. Из дюймовой доски толщиной 75 мм нарежьте шесть реек длиной 1525 мм — это будут планки сиденья. Их прикручивают 50-мм саморезами через предварительно просверленные отверстия. Планки устанавливают с небольшими отступами (½ дюйма)
Для садовой мебели это очень важно — зазоры препятствуют скоплению дождевой воды на горизонтальных поверхностях
По аналогичной схеме нарежьте и соберите планки спинки
Но обратите внимание, рейки здесь немного короче: их длина составляет 1450 мм. Их также изготавливают в количестве 6 штук: пять планок прикручивают вертикально, а последнюю — горизонтально на торцах опорных конструкций
Не ленитесь делать предварительные отверстия под крепеж — это позволит избежать досадных ситуаций, как на фото. Чтобы ускорить этот не самый увлекательный процесс, делайте отверстия серийно: собирайте в стопку сразу несколько досок, фиксируйте «пакет» струбцинами и просверливайте все рейки за один проход.
Собираем боковину
Из доски 50х100 мм (та же, что использовалась для опорных сборок) вырежьте две прямоугольные заготовки для передних стоек. Далее отпилите торцы под углом 12,5 ° в одном направлении, как показано на схеме.
Прикрепите опоры подлокотника двумя болтами с шайбами, как на фото. Для этого сначала прижмите стойки струбцинами к боковине, проверьте точность подгонки и уже потом засверливайтесь.
Подготовьте две доски 50х100х570 мм. Перенесите на заготовку контур подлокотника и аккуратно вырежьте деталь, оставляя небольшой припуск для последующей обработки кромки. Прикрутите подлокотник 75-мм саморезами к торцу передней опоры и двумя саморезами через задние стойки.
Наверняка многие уже успели заметить, что конструкция этой качели очень похожа садовое кресло адирондак. Больше об этом культовом кресле и его изготовлении своими руками — читайте здесь.
Просверлите отверстия под болты с проушиной, как показано на фото.
Сиденье качели собрано. Но это только половина работы. Теперь нужно подумать, на какой конструкции лучше подвесить качели.
Основные правила безопасной эксплуатации качелей
Существует ряд мер безопасности, которые обеспечивают малышу на игровой площадке спокойствие и отсутствие травматизма. Выглядят они так:
- На одной раме нежелательно размещать больше двух качелей. Расстояние между ними должно быть минимум 50 см.
- Зону приземления лучше оборудовать прорезиненными ковриками или песком.
- На сиденье, как и на раме не должно быть никаких заусенцев от сварки.
- Болты при монтаже желательно брать со скрытыми головками и вгонять их в дерево максимально.
- Нужно ежегодно перед началом теплого сезона проверять карабины, смазывать их или менять на новые. Металл быстро изнашивается в условиях холода и непогоды.
Качели для детей, смонтированные своими руками по чертежам и фото, с соблюдением этих правил, ничем не уступают заводским.
https://youtube.com/watch?v=YdESVxlAbl0
Напишите нам в коментариях:
А какие качели больше нравятся вам: деревянные или металлические?
Какие садовые качели можно смастерить своими руками из металла с фото моделей
При всём многообразии садовых качелей, только стальная конструкция обеспечивают высокую надёжность, безопасность и долговечность. Каркас изготавливается при помощи сварки либо собирается из нескольких элементов. Первый вариант более надёжный, а во втором случае нужно периодически проверять крепежи и, при необходимости, их подтягивать.
Металлические качели бывают двух видов:
- переносные, они имеют жёсткую нижнюю раму;
- стационарные, их опоры забетонированы.
Дополнительно можно закрепить сиденье из деревянных реек или сделать мягкий матрасик, который позволит отдыхать с комфортом. Садовые модели чаще всего предназначены для всей семьи. Часто владельцы участков выбирают и детские варианты.
Детские качели из металла для дачи
К детским качелям предъявляются особые требования, они, в первую очередь, должны быть безопасными
При изготовлении моделей для ребятишек важно учитывать следующее:
- качели не должны иметь острых граней, срезов и углов, чтобы детки не могли пораниться во время игр;
- можно использовать только экологически чистые материалы;
- конструкция должна соответствовать возрасту ребятишек;
- дизайн аттракциона – ребятишек будут привлекать яркие краски и интересные формы конструкции.
Ещё одно немаловажное отличие детских конструкций от взрослых – их размеры, ножки малыша должны доставать до земли, чтобы он мог самостоятельно раскачиваться, в противном случае, ему постоянно нужна будет помощь. Высота подвеса напрямую зависит от роста ребёнка:
- для роста до 80 см высота подвеса – 54 см;
- соответственно, до 90 см – 58 см;
- до 100 – 63 см;
- до 115 – 68 см;
- до 119 – 74 см;
- до 129 – 79 см;
- до 139 – 86 см.
Чаще всего детские качели рассчитаны на одного ребёнка, но можно сделать своими руками из металла и двойную модель, фотопримеры таких конструкций представлены в нашей галерее. Так ребятишки смогут спокойно кататься вместе, а не ждать своей очереди.

Можно на одном каркасе закрепить два сиденья на достаточном расстоянии друг от друга ФОТО: yandex.kz
Переносные качели должны иметь жёсткую раму снизу ФОТО: en.decorexpro.com
детские качели для дачи
Самодельные качели для дачи из металла для всей семьи
Качели для всей семьи должны отличаться повышенной прочностью, поэтому металл – это лучшее решение для взрослого аттракциона. Скамью следует делать пошире, чтобы на ней одновременно разместилось не менее двух-трёх человек. Дополнительный регулируемый навес будет закрывать отдыхающих от солнечных лучей или небольшого летнего дождика.


садовые качели
Фотопримеры кованых садовых качелей
Кованые качели для дачи – это настоящее произведение искусства. Для их создания своими руками требуются определённые навыки. Такие конструкции стоят довольно дорого, но цена оправдана особой прочностью, долговечностью и надёжностью. Кроме того, изящный внешний вид станет настоящим украшением приусадебного участка, экстерьера дачи или загородного дома.


Инструкция по изготовлению
Практически любой тип качели можно сделать самостоятельно, поскольку этот процесс довольно прост. Мы же рассмотрим несколько усложненный вариант устройства за счет того, что он предусматривает использование сварки. Такая работа выполняется в определенной последовательности:
- Нарезка деталей из труб: боковых стоек длиной 2 м, перекладины – от 1,5 до 2 м; подготовка 4 цилиндрических изделий, имеющих произвольную длину, которые необходимы для сборки основания.
- Зачистка труб посредством напильника или шкурки для избавления от заусениц.
- Сварка конструкций для основания под прямым углом.
- Крепление стоек к опорной части, затем перекладины к вертикальным элементам с применением специального аппарата.
- Рытье 4 ям глубиной не менее 80 см.
- Вставка в углубления металлических балок длиной, превышающей их глубину.
- Заливка ям раствором, приготовленным из цемента, щебня, песка и воды, взятых в пропорции 1:1:2:2. Для того чтобы бетон набрал требуемую прочность, следует подождать неделю и только после этого продолжить монтажные работы.
- Изготовление крючков для подвеса посредством анкеров с последующим их привариванием.
- Соединение собранного каркаса с торчащими из земли металлическими балками с использованием специального аппарата.
- Установка сиденья.
Как сделать детские качели из профильной трубы
Профильная труба позволяет конструкцию качелей сделать особенно прочной и надежной. Такая самоделка долго послужит, и детям, и внукам, и правнукам. Из металлического профиля можно собрать конструкцию полностью. Но чаще всего его используют исключительно, как основу. А сидения делают из дерева. Можно сделать основу для козырька и покрыть поликарбонатом. Тогда отдыхать на ней можно и в жару, и в дождь (если сильно захочется).
Источник https://www.youtube.com/watch?v=T8_qmcoB9PQ
Качель из профильной трубы 2 м.
- Профиль 40 на 40
- Уголки
- Цепь короткозвенная 5 мм. диаметр
- Рымгайки
- Карабины

Обратите внимание на распорки вверху, которые не дадут конструкции искажаться со временем. Внизу грунт будет выравниваться, будут вкапываться профиля и в них закрепляться основание

Чуть ниже ставим распорки.

Сиденье сделано из профиля 40 на 40. Рым-гайки и карабины для крепления — по 4 шт. Само сиденье сделано из лиственницы и вскрыто тонирующим антисептиком в 3 слоя. Желательно на профиль одеть заглушки. Профиля выкрашены грунтом 3 в 1 в два слоя.











![[мастер-класс] качели садовые своими руками | фото](https://santehnika31.ru/wp-content/uploads/2/8/2/28201fd5b39edacc8019a29209b200c2.jpeg)













































