Лучшие двухконтурные твердотопливные котлы
Metal-Fach SMART MAXI 15

Фактически считается одноконтурным, но может быть подключен к бойлеру косвенного нагрева воды и подавать горячу воду для бытовых нужд.
Основные характеристики:
- Топливо: уголь каменный, дрова, топливные древесные брикеты.
- Площадь обогрева: до 150 м2;
- Объем топки: 26 л;
- Мощность: 15 кВт;
- Количество контуров: 1, но можно подключиться к бойлеру для ГВС;
- Дымоход: диаметр 160 мм;
- Рабочее давление: 2,5 бар;
- Масса: 310 кг;
- Производство: Польша-Россия.
Достоинства:
В загрузочный бункер помещаются поленья до 50 см длиной;
Минимум технических сложностей с монтажом, чисткой и обслуживанием;
Горючее сгорает практически полностью, остается минимум золы;
Заявлена продолжительность работы на одной закладке дров до 9 часов, на угле – до 12 часов.
Недостатки:
Очень тяжелый, сложно транспортировать и монтировать;
Возможно накопление смоляного конденсата при отоплении дровами.
Kiturami KRM-30 R

Модель с двумя контурами для подогрева воздуха, полов и воды с удобной надёжной настройкой режимов. Можно выставить один или несколько параметров и не беспокоиться о том, что настройки собьются в неподходящий момент. Такой котел подойдет даже для большого по площади дома или промышленного помещения – мощность и объем топки плюс режим длительного горения это позволяют.
Основные характеристики:
- Топливо: дрова, топливные брикеты, уголь каменный или любое другое биотопливо. Можно подключить дизельную горелку.
- Площадь обогрева: до 350 м2;
- Объем топки: 51 л;
- Мощность: 35 кВт;
- Количество контуров: 2;
- Дымоход: диаметр 175 мм;
- Рабочее давление: 2 атм;
- Масса: 170 кг;
- Производство: Южная Корея.
Достоинства:
Две камеры сгорания: благодаря этому дым не попадает в теплообменник;
Электронное управление работой упрощает настройку;
Безопасность, которую обеспечивает система датчиков (перегрева, давления, уровня теплоносителя и др.).
Недостатки:
Цена выше средней.
DRAGON ТА-ГВ-25

Российский двухконтурный котел длительного горения с пиролизным эффектом. Это помогает существенно экономить. Топливо в колоснике полностью сгорает, тепло и горячая вода в доме сохраняются гораздо дольше – до 10 часов на одной загрузке. Подходит для установки в системы с принудительной или гравитационной циркуляцией.
Основные характеристики:
- Топливо: каменный уголь, дрова, брикеты.
- Площадь обогрева: до 250 м2;
- Объем топки: 98 л;
- Мощность: 25 кВт;
- Количество контуров: 2;
- Дымоход: диаметр 150 мм;
- Рабочее давление: 2 бар;
- Масса: 249 кг;
- Производство: Россия.
Достоинства:
Вместительный бункер – помещаются поленья длиной до 60 см;
Можно перевесить дверцы, чтобы установить в любое удобное место;
Регулируемые ножки для установки на неровной поверхности.
Недостатки:
Тяжелый;
Нет встроенного электрического ТЭНа и газовой горелки.
Виды твердотопливных котлов
Твердотопливные котлы изготавливаются только с напольным вариантом установки, они могут быть предназначены, как для сжигания только одного вида топлива, как классические агрегаты, так и для разных видов топлива, как пиролизные и пеллетные.
Устройства чаще выпускаются одноконтурными, но в большинстве вариантов имеют возможность включения внешнего бойлера косвенного нагрева ГВС. Кроме того современные котлы, работающие на твердом топливе оборудуются электрическими ТЭНами для поддержания температуры внутреннего контура отопления в ночное время или при отсутствии жильцов дома.
Классические
Этим модификациям агрегатам уже больше двухсот лет и они имеют традиционную конструкцию. Комплектуются топочной и зольной камерами, ёмкостным теплообменником в виде водяной рубашки и дымовентиляционной системой.
Работают такие агрегаты на любом твердом топливе. Они мало эффективны, поскольку не имеют развитых поверхностей нагрева. Это приводит к тому, что в них большие потери тепла с уходящими газами, порядка до 20 %.
Кроме того они не имеют автоматической подачи топлива, засыпка топлива происходит каждые 2-3 часа в ручную. Агрегаты работают с естественным отводом топочных газов в атмосферу, управление процессом горения выполняется в ручном режиме, через регулировочную заслонку для подачи воздуха.
Контур отопления подключается к внутридомовой системе теплоснабжения, работающей по принципу естественной циркуляции. Обычно мощность таких агрегатов не высокая, они способны обогреть дома с площадью не выше 150 м2.
Пиролизные
Нормальное функционирование агрегатов данного класса протекает в режиме генерации на базе тления топлива с выделением летучих веществ. В теплотехнике такой технологический процесс именуется пиролизом.
В качестве энергоносителей, как правило, применяется древесина. Под воздействием высочайших температур и дефицита воздуха они расщепляются до газообразных летучих веществ, которые сгорают в пиролизной камере, с выработкой тепловой энергии, которая через теплообменник передается греющему теплоносителю отопительного контура.
Для реализации пиролизного процесса топка разделена на 2 рабочие камеры. В основной — топливо тлеет, с выделением горючих газов, которые догорают в зоне дожига при температуре 1200 С , обогащенные вторичным воздухом.
Пеплетные
Такие котлы сжигают специально приготовленное топливо — пеллеты в виде гранул, полученных в процессе переработки производственных и сельскохозяйственных отходов: опилок, фрагментов растений и торфа.
Они характеризуются небольшой влажностью и очень высокой теплотворной способностью и определенной текучестью, что позволяет организовать автоматическую подачу топлива в котел без участия человека.
Котлы оборудованы системой автоматического розжига и регулирования процесса горения, что обуславливает высокие показатели эффективности — КПД до 92 %. Агрегаты способны отапливать помещения с большой площадью – 1000 м2. Они экологически безопасны, поскольку обеспечивают полное сжигание вредных веществ в топливе.
Лучшие твердотопливные котлы длительного горения
Продолжительность горения на одной закладке горючего – один из главных критериев выбора. Увеличить продолжительность можно двумя путями: за счет расширения объема топливной камеры или реализации принципа обратного горения. Команда проекта VyborExperta.ru проанализировала 8 котлов и остановила свой выбор на 3 моделях. Предлагаемая техника отличается высокой рентабельностью, максимальным КПД и безопасностью.
Zota Тополь-16ВК
Котел с одним контуром отопления мощностью 16 кВт, предназначенный для обогрева зданий площадью от 50 до 160 кв.м. Укомплектован встроенным бойлером на 29 л, рассчитанным на максимальную температуру теплоносителя 95 ºС. Сжигать в камере можно дрова, каменный уголь или брикеты. Максимально допустимое давление в системе – 3 атм.
Сложная конфигурация теплообменника и наполненные теплоносителем колосники обеспечивают высокий КПД. Снизить теплопотери теплообменника помогает водяная рубашка с покрытием из базальтового картона. Загружать топливо можно через вертикальную и горизонтальную топку. Доступ к теплообменнику для очистки – через съемную заслонку. Модель можно укомплектовать пеллетной горелкой и автоматизировать работу.
Достоинства:
- Регулируемая поддувальная заслонка;
- Термометр позволяет измерить температуру теплоносителя;
- Улучшенная эффективность теплоотдачи;
- Автономная зольная дверца;
- Время горения – 10-12 часов;
- Возможность комплектации ТЭНом;
- Вместительная топка – 39 л;
- Низкая цена.
Недостатки:
Длина дров до 396 мм.
Модель можно укомплектовать автоматикой, которая контролирует горение. Оборудование регулирует подачу воздуха, поддерживая оптимальный режим. Это позволяет увеличить продолжительность горения на одной загрузке топлива на 70%.
Теплодар Куппер Эксперт-22
Напольная модель мощностью 22 кВт, предназначенная для установки в частных домах, площадью до 220 кв.м. Работает на топливных брикетах, угле и дровах. Горение на одной закладке до 24 часов благодаря верхнему горению с трехзонной подачей воздуха. Расширенная комплектация включает в себя предустановленный ТЭН, шибер и термометр итальянского производства для контроля над температурой теплоносителя. В комплекте все аксессуары для чистки камер. Для прочистки установлено два люка.
Конструкция позволяет установить пеллетную или газовую горелку и за полчаса перенастроить оборудование. Работает в четырех разных режимах, которые позволяют быстро поднять температуру в системе или обеспечить максимальную рентабельность.
Достоинства:
- Универсальность;
- Быстрый нагрев;
- Удобная загрузка топлива через наклонную дверцу;
- Съемный лоток из нержавейки дополнительно защищает от перегрева дверцу топки;
- Гарантия производителя 3 года;
- Хорошая теплоотдача.
Недостатки:
- Дрова только небольшого размера;
- Требует регулярной чистки.
НМК Магнум КДГ 20 ТЭ
Компания НМК выпускает твердотопливные котлы для дома, работающие весь отопительный сезон без остановки на профилактику. В качестве горючего рекомендуется каменный уголь. Мощность в 20 кВт позволяет справиться с отоплением загородного дома, площадью 180-200 кв.м. Оборудование комплектуется автоматическим терморегулятором тяги, который контролирует подачу воздуха, температуру теплоносителя. Манометр на лицевой панели упрощает контроль над рабочим давлением. Рекомендуемое давление воды в контуре – не более 2 атмосфер.
Конструкция камер и водяной рубашки позволили увеличить КПД оборудования до 80%. Для поддержки комфортных условий в межсезонье можно установить ТЭН. Механическое управление делает оборудование полностью энергонезависимым.
Достоинства:
- Низкий расход топлива;
- Хороший уровень теплоизоляции;
- Работает на любом виде каменного угля;
- Стильный дизайн;
- Простое целевое установление рабочей температуры.
Недостатки:
Один вид топлива.
Как выбрать твердотопливный котел для отопления частного дома
Все котлы, работающие на твердом топливе, можно разделить на:
- Котлы пламенного горения или классические. Топливо в таких котлах сгорает при обычном пламени. В топку загружаются дрова или уголь, другая дверца служит для очистки котла от золы, пепла и т.д.
- Пиролизные котлы. Пиролиз — процесс температурного разложения топлива в условиях дефицита кислорода с образованием и дальнейшим сжиганием древесного газа. Полная продолжительность горения до 10 часов, КПД таких котлов до 90%.
- Котлы длительного горения. Процессы, происходящие при горении в таких котлах, похожи на пиролиз, но с некоторыми особенностями. Наиболее известный представитель этой группы оборудования — котел булерьян. В нижней камере этого котла в режиме газогенерации сгорает топливо, в верхней — дожигается древесный газ.
- Котлы автоматические. В этих котлах процессы подачи топлива, управления горением под принудительным наддувом, очистки и удаления продуктов горения полностью автоматизированы.
Твердотопливный котел для отопления частного дома подбирается по нескольким основным характеристикам:
Виду топлива. Если предполагается использовать уголь, то лучшим материалом для топки будет высоколегированная сталь, если топить планируется дровами, то чугун.
Мощности котла или объему рабочей камеры. Характеристики загрузочной камеры и частоты загрузок в нее топлива. Учитывается также вес и размеры котла. При одинаковой мощности, стальной котел на 20% меньше чугунного по объему.
Весу и стоимости. Стальной котел, одинаковый по мощности с чугунным, меньше размерами и легче, поэтому цена доставки и установки его будет ниже.
Экономичности. КПД стального котла выше, чем чугунного
Важно, что чугунный котел при этом медленнее остывает.
Стоимости, удобству обслуживания и ресурсу работы. При правильной эксплуатации котел служит более 10 лет, хотя этот срок обычно заявляется производителем, как срок службы.
Безопасности
По этому показателю стальные котлы более предпочтительны, чем чугунные, поскольку выпускаются только ведущими компаниями-производителями по серьезным разработкам. Производителей чугунных котлов на порядок больше, и качество оборудование сильно отличается.
ТОП 5 твердотопливных котлов дрова/уголь

Если вы не хотите озадачиваться вопросом заготовки топлива и планируете топить «чем есть», вам стоит обратить внимание на модели «всеядные». Такие отопительные приборы могут работать как на дровах, так и на угле
Более того, многие из них способны работать и на твердых бытовых отходах. В них замечательно и с пользой можно сжечь что угодно. В этом случае, кроме обогрева помещения хорошо решается проблема утилизации бытового мусора.
Bosch Solid 2000 B K 16-1
Довольно простая в обслуживании и «всеядная» модель. Корпус из высококачественной стали и чугунные колосники обеспечивают надежность и долговечность работы. Если площадь вашего жилища не более 150–160 кв. метров, Bosch Solid 2000 B K 16-1— это то, что нужно. В средней ценовой категории такой котел можно считать одним из лучших предложений 2021–2021 года.
Достоинства:
- большой выбор видов топлива;
- возможность чистить котел через верх;
- надежность работы;
- авторегулировка мощности;
- интересный дизайн;
- возможность использовать в паре с газовым котлом в качестве резерва;
- доступная цена, не более 750 долларов США.
Недостатки:
особых – не обнаружено.
Как выбрать твердотопливный котел для отопления частного дома
Protherm Бобер 20 DLO
Вот еще одна довольно качественная модель, способная отлично обогреть помещение площадью не более 170 квадратных метров. «Протерм Бобер» способен работать как на угле некрупной фракции, так и на дровах.
Плюсы:
- высокая эффективность работы;
- экономичность;
- высокий КПД (до 90%);
- чугунные топка и теплообменник;
- возможность использовать котел в качестве вспомогательного оборудования;
- способность работы на одной загрузке до 12 часов;
- стоимость около 800$.
Минусы:
- влажность дров не должна превышать 20%;
- непривычная регулировка тяги;
- не слишком удобная чистка, нужна приспособиться;
- масса больше, чем у аналогичных моделей.
Buderus Logano G221-25
Весьма интересная модель, мощности которой достаточно для отопления 200 кв. метров площади. Чугунный корпус обеспечивает исключительную надежность и высокую пожаробезопасность.
Преимущества:
- повышенная стойкость от коррозии;
- увеличенные размеры топки;
- простота эксплуатации;
- КПД около 75–77%;
- минимальное время прогрева помещения;
- вместительный приемный бункер.
Недостатки:
- довольно высокая стоимость, примерно 1300 у.е.;
- немалый вес.
Буржуй-К Модерн-24
Этот современный и стильный отопительный прибор способен работать без дозаправки на протяжении нескольких часов (в зависимости от вида топлива). Причем для получения тепла можно использовать все что угодно. Топливом в данном случае может служить уголь, дрова, отходы древесины и топливные брикеты. При этом в зависимости от вида используемого топлива можно достичь КПД более 90%.
Плюсы:
- отапливаемая площадь до 250 м2;
- компактные размеры;
- возможность использовать дрова влажностью до 50%;
- КПД до 92%;
- экономичное использование топлива;
- полная независимость от электричества;
- расход менее 40 кг дров в сутки.
Минусы:
- необходимость установки трубы достаточной высоты (не менее 8 м) для качественного отведения продуктов горения;
- колосники быстро прогорают и требуют замены;
- в некоторых моделях быстро забивается шибер;
- цена приблизительно 1 300 долларов США.
Alpine Air Solidplus 4
Если вы хотите входить в котельную как можно реже, а само помещение где установлено топливное оборудование утеплено у вас не слишком хорошо, этот котел именно то, что вам нужно. Несмотря на не слишком изысканный дизайн, этот агрегат способен работать практически на любом виде твердого топлива и вполне эффективно обогревать помещение площадью до 200 м2.
Достоинства:
- доступная цена, около 800$;
- надежный и неприхотливый;
- высокий КПД;
- прекрасная теплоизоляция.
Недостатки:
весьма оригинальный дизайн.
Лучшие недорогие модели котлов
Модели недорогого отопительного оборудования являются отличной альтернативой своим дорогостоящим аналогам, работающим на жидком или сжиженном топливе. Они способны функционировать в автономном режиме в течение нескольких десятков часов. Согласно рейтингу оборудования, в топ-3 самых востребованных недорогих моделей входят следующие.
Эван Warmos TT-18
Данный агрегат неприхотлив к виду топлива, колосниковая система позволяет сжигать древесные отходы влажностью до 70 %. КПД рассчитан на российскую зиму.
Глубина топки позволяет использовать поленья длиной до 55 см. Увеличено время сгорания при полной загрузке агрегата. Максимальное время горения на угле — до 15 часов, на дровах — до 8 часов. Имеется защитный экран для предохранения от языков пламени.
Общие характеристики:
- Тип: твердотопливный.
- Число контуров — 1.
- Мощность обогрева — 18 кВт.
- Отапливаемая площадь — 120 кв. м.
- КПД — 65 %.
- Способ установки — напольный.
- Топка — открытая.
- Энергонезависимый.
Зота Дымок-М АОТВ-12М
Простой и доступный твердотопливный котел «Дымок» серийно выпускается российской компанией ООО «Красноярскэнергокомплект». Изделия данного производителя, известные под брендом ZOTA, завоевали признание как в своей стране, так и за рубежом.
Агрегаты «Дымок» — типичные представители котлов прямого горения с ручной регулировкой подачи воздуха через заслонку. В базовом исполнении агрегаты полностью энергонезависимые, но установка поставляемых отдельно электрических ТЭНов предусмотрена.
Общие характеристики:
- Тип : твердотопливный.
- Число контуров — 1.
- Мощность обогрева — 12 кВт.
- КПД — 70 %.
- Способ установки — напольный.
- Топка — открытая.
- Энергонезависимый.
Лемакс Форвард-16
Прекрасная альтернатива рукотворным печам, которые продолжают использоваться в сотнях частных домовладений. Покупая котел производства «Лемакс», потребитель получает автономную, независимую и надежную систему обогрева, проверенную службой завода на предмет качества на всех этапах создания агрегата.
Отопительные котлы на твердом топливе производства «Лемакс» очень эффективны за счет использования современных технологий при проектировании и производстве, а также применения высококачественных материалов. Они обеспечивают отличную теплоотдачу, быстрый розжиг и длительное горение.
Котлы «Лемакс» также гарантируют качественное экологичное сжигание топлива, что делает их применение удобным.
Общие характеристики:
- Тип — твердотопливный.
- Число контуров — 1.
- Мощность обогрева — 17 кВт.
- КПД — 75 %.
- Способ установки — напольный.
- Топка — открытая.
- Энергонезависимый.
Популярные производители и модели
На рынке твердотопливных котлов существует немало моделей, достойных выбора, однако если есть желание приобрести надежное и качественное устройство, то имеет смысл рассматривать продукцию следующих брендов:
- Zota;
- Pereko;
- Buran;
- Viessmann;
- Stropuva;
- Heiztechnik и другие.

Выбор твердотопливного котла
Ознакомимся поближе с самыми популярными моделями. Например, котел, работающий на дровах, Stropuva S10. Он используется обычно для обогрева небольших помещений, при этом не нуждается в подгрузке топлива в течение трех дней. Котел имеет высокий КПД (90%), не зависит от наличия электроэнергии в доме, имеет небольшие размеры и привлекательный внешний вид. Главный минус – большая цена (около 94 100 рублей).

Stropuva S10

Котел длительного горения Stropuva S10
Котел Dakon DOR F 16 работает уже на углях, а не на древесине. При этом дрова в него загружать противопоказано. Но зато агрегат способен сжечь даже некачественный или отсыревший уголь. Отличная теплоотдача, высокий КПД, независимость от электропитания и небольшой вес – основные достоинства этой установки. Котел имеет защиту от перегрева. Цена — от 45 600 рублей.

Котел Dakon DOR F 16
Установка под названием Zota Pellet 25А в качестве топлива потребляет обычные топливные пеллеты – один из самых экономичных типов горючего. Такой котел можно смело назвать ультрасовременным – он оборудован ЖК-дисплеем, приятным дизайном. Имеется возможность управлять разными насосами, а розжиг производится благодаря электричеству. КПД достаточно высокое. Установка способна обогревать значительные площади, а основной недостаток – высокая цена (от 196 000 рублей).

Zota Pellet 25
Котел Viessmann Vitoligno 100 VL1A025 30 кВт является пиролизным и работает только на дровах в течение 10 часов при полной загрузке топливной камеры. Способен обогреть довольно значительные площади — до 350 м2. При этом котел обязательно напомнит, когда ему необходимо будет добавить дрова. КПД в меру высокий (87%), а мощность очень большая. Но вот в отношении топлива котел капризен и стоит очень дорого (204 600 рублей).

Viessmann Vitoligno 100 VL1A025
Среди котлов длительного горения спросом пользуется Stropuva S 40, который будет работать на 50 кг обычных дров около 70 часов, да еще и с КПД 95%. С его помощью получится прогреть помещение с площадью до 400 м2. Также в качестве топлива можно использовать пеллеты, уголь, кокс.

Stropuva S 40
Среди чугунных установок очень популярной моделью является Lamborghini WBL 7, имеющий хорошую теплоизоляцию, отличный КПД (90%), возможность регулирования мощностей. Полностью загруженной камеры сгорания хватит для работы котла на протяжении 12 часов. Отапливает установка помещения площадью до 280 м2. Стоимость — около 76 900 рублей.

Lamborghini WBL 7
Стальной Bosch Solid 2000 B K 16-1 – отличный способ сэкономить, но купить качественный агрегат. Он универсален по отношению к топливу, к тому же очень прост в обслуживании. Сталь, кстати, для производства этого котла используется высококачественная, а потому установка будет служить долго и не прогорит. Очень надежная и с прекрасным внешним видом модель. Цена — от 52 400 рублей.

Bosch Solid 2000 B K 16-1
Если есть желание купить котел, но денег совсем мало, то лучший выбор – это недорогой GEFEST КВО 20 ТЭ от производителя «Сибирь». Стоит сущие копейки по сравнению с другими моделями (19 750 рублей), но при этом надежен и хорошо сжигает как уголь, так и дрова. Установки хватит для обогрева помещения площадью до 200 м2.

GEFEST КВО 20 ТЭ
Виды твердотопливных котлов
В целом, все твердотопливные котлы одинаковые – они имеют топку для сжигания горючего, теплообменник, исправно трудятся над обогревом жилого или нежилого помещения. Но все же установки бывают разных типов и отличаются друг от друга по различным параметрам и эксплуатационным характеристикам.
Таблица. Виды котлов, функционирующих на твердом топливе.
| Критерии | Разновидности |
|---|---|
По возможностям и назначению | Существуют котлы как одноконтурные, так и двухконтурные. Первые используются только для отопления. В них обустроен один теплообменник, который нагревает воду, циркулирующую по отопительному контуру. Двухконтурный котел имеет соответственно два контура и предназначен как для отопления дома, так и для нагрева воды для хозяйственно-бытовых нужд. Позволит принимать душ, мыть посуду при помощи теплой воды и избавит владельца дома от покупки бойлера для подогрева жидкости. |
По материалу изготовления | Если разделить все котлы по этому признаку, то увидим, что существуют агрегаты, имеющие чугунный или стальной теплообменник. Чугунные отличаются высокой стойкостью к коррозии, надежностью, долговечностью, способностью удерживать тепло на протяжении достаточно длительного времени. Но такие установки очень тяжелы и стоят дорого. Также агрегат из чугуна чрезмерно чувствителен к резким перепадам температур – из-за этого в нем могут образоваться трещины. Котел со стальным теплообменником обойдется владельцу дома в гораздо меньшую сумму, чем чугунный, но боится ржавчины и к тому же быстрее остывает. Зато легче в установке и доставке за счет небольшого веса. Чугунные и стальные котлы немного отличаются друг от друга и конструкцией. В стальном система охлаждения будет располагаться непосредственно внутри агрегата. А вот чугунная установка имеет охлаждение на подаче воды в котел. |
По принципу работы и способу сгорания топлива | Котлы бывают газогенераторные (пиролизные) и классические (традиционные). Первые имеют две специальные газоплотные камеры, которые располагаются друг над другом и соединены между собой форсункой. В верхней камере происходит сгорание топлива при низком содержании кислорода, а в результате выделяется газогенераторный газ, который сгорает во второй камере. Происходит дополнительный подогрев. За счет этого КПД такого котла максимально высок (до 92%). Такой котел более экологичен, а чистить его приходится значительно реже. |
По способу подачи воздуха | Энергозависимые (с дополнительной тягой) и энергонезависимые котлы отличаются друг от друга наличием у первого специального вентилятора, который направляет воздух в камеру сгорания. Лопасти установки вращаются за счет электрического привода. В энергонезависимом котле воздух подается естественным путем. |
По способу загрузки топлива | Некоторые котлы имеют специальный бункер, в котором содержится топливо, автоматически подающееся в систему установки. Это может быть мелкий уголь, пеллеты, стружка и другое мелкофракционное топливо. Если наполнить бункер топливом, то о загрузке в установку можно не думать на протяжении нескольких дней. Обычный котел придется загружать каждые несколько часов. |

Котел на твердом топливе длительного горения Stropuva S 10U (универсал)

Твердотопливный котел Viessmann Vitoligno 100-S
Как сделать самому экономичный котел пиролизного типа
Интернет наполнен множеством красивых картинок пиролизных котлов, но большинство этих достижений изобразительного искусства не имеет никакого отношения к раздельному сгоранию топлива. При внимательном рассмотрении становится понятно, что внутри такого устройства пылает обычный костер, воспламеняется вся закладка топлива. Вместо пиролизного рисуют обычный ТК с добавлением камеры дожигания газообразных продуктов в верхней части топки.
Такая схема внутреннего устройства ТК повышает КПД, но не обеспечивает длительного регулируемого горения одной закладки топлива в течение 6–24 часов. Газы из топки должны выходить только вниз через продольные щели во внутренней горизонтальной перегородке.
Процессы внутри пиролизного ТК можно представить в таком виде:
- В камеру газификации через дверку, расположенную в верхней части корпуса, закладывают разовую порцию топлива, а затем поджигают снизу из зольной камеры.
- Дымосос направляет выделяющийся при горении дым в газоходы.
- В камере дожигания происходит подмешивание приточного воздуха для окончательного догорания газов.
- Топку, камеру дожигания и газоходы окружает «водяная рубашка», которая является частью теплообменника, а также сберегает стенки котла от перегрева.
- Теплоноситель поступает в ТК через нижний штуцер и отводится через верхний.
В котле верхние слои топливной закладки только прогреваются, но не воспламеняются. Раскаленные угли, прогорая полностью, постепенно падают в зольную камеру. Топливо под собственной тяжестью прижимается к раскаленному колоснику и воспламенятся. Таким образом поддерживается многочасовая непрерывная работа ТК.

Необходимые инструменты и материалы
Умелый хозяин способен изготовить самостоятельно пиролизный ТК мощностью до 25 кВт. Для сборки котлов с большей производительностью необходимо использовать технологию сварки толстых листов жаропрочной стали. Это можно сделать только в заводских условиях.
Для работы понадобятся следующие инструменты и материалы:
- сварочный аппарат;
- электроды;
- отрезной инструмент типа «болгарка»;
- шлифовальные и отрезные диски;
- дрель;
- набор сверл по металлу;
- 10 м2 листовой стали толщиной 5 мм;
- 6 м2 оцинкованной стали толщиной 1,5 мм;
- фурнитура для дверок — ручки, задвижки;
- отрезки стальных труб: ∅ 32 мм, толщина стенки 3,2 мм — 0,5 м; ∅ 57 мм, толщина стенки 3,5 мм — 8 м; ∅ 159 мм — 0,7 м;
- шамотный кирпич для футеровки топки;
- чугунный колосник;
- температурный датчик;
- термоклапан;
- источник бесперебойного питания;
- дымосос.
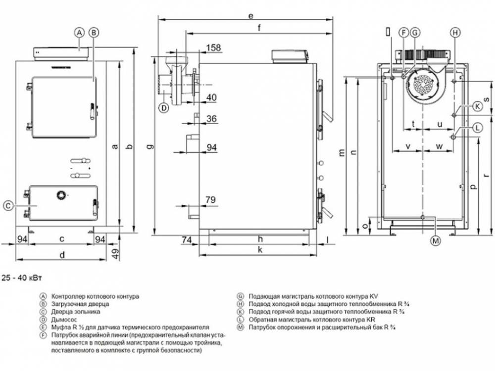
Спецификация должна быть уточнена по рабочим чертежам. Для ТК мощностью 25 кВт буквенные символы имеют следующие фактические значения, выраженные в миллиметрах: a — 1039, b — 1190, c — 430, d — 618, e — 1289, f — 1101, g — 1126, h — 765, k — 880, l — 41, m — 990, n — 980, o — 137, p — 373, r — 725, s — 255, t — 145, u — 200, v — 198, w — 202.

Изготовление котла
Требуется подготовить заранее монтажную площадку и детали для изготовления ТК. Раскроить листовой металл лучше всего в заводских условиях на гильотине. Там же плазменным резаком можно сделать прямоугольные проемы в передней стенке котла, а в задней — круглые отверстия для дымохода и патрубков. Теперь можно приступать к изготовлению котла.
Соедините сваркой боковые и переднюю наружные стенки.

Последовательно установите детали «водяной рубашки» зольной камеры.

Приварите дно и заднюю стенку загрузочного бункера.

Сформируйте газоходы, приварите все детали «водяной рубашки», смонтируйте под крышкой котла регистр теплообменника. Только после этого установите внешние нижнюю, верхнюю и заднюю стенки.

Остается только выполнить заключительные работы:
- Приварите монтажные скобы для дымососа, петли для дверок и штуцера теплообменника.
- Ко дну прикрепите ножки с регулировочными болтами, с помощью которых можно будет установить котел вертикально.
- Удалите окалину, сварочный шлак, ржавчину.
- Установите дверки.
- Обезжирьте растворителем все поверхности.
- Равномерно покройте корпус жаростойкой краской.
- По окончании всех работ можно приступать к установке, подключению к отопительной системе и наладке ТК.

Достоинства и недостатки
К плюсам можно отнести следующие факторы:
- Простота конструкции и обслуживания.
- Доступность и относительная дешевизна топлива.
- Высокая инерционность. котел дольше находится в состоянии нагрева и сильнее обогревает помещение.
- Многие модели являются энергонезависимыми .
Минусы данных котлов
- Необходимость периодической чистки зольника и топки, а также ее загрузки топливом.
- Необходимость соблюдения правил безопасности при обращении с огнем и горячими деталями котла.
- Зависимость работы от уровня и давления воды в системе — в результате порой существует возможность перегрева при малом уровне. Исходя из этого — требование наличия расширительного бака и периодическая доливка воды. Во избежание отложений вода должна быть пропущенной через фильтр.
- Более низкий КПД. чем у других типов котлов (50−85% против 85−95% у газовых).
- Высокая инерционность при работе: для самого котла это минус — возможность перегрева.
- Трудная регулировка режима обогрева, из-за большой инерционности.
Исходя из всего вышеизложенного видно — у твердотопливных котлов, как и у всех других, имеются положительные и отрицательные стороны.
От автора. Пришлось мне как-то 1,5−2 года поработать кочегаром-истопником на самодельном мощном котле, замурованном в кирпич. Котел работал на дровах больших размеров (1−1,5 метра длиной) и угле. Обогревал он два автомобильных гаража на 3−6 больших грузовиков каждый и небольшой двухэтажный административный пристрой к одному из них. Что напрягало — постоянная каждодневная чистка от золы и шлака, и невозможность точно держать нужную температуру даже при качественном топливе. А некачественное (отсыревшее) топливо постоянно приходилось смачивать отработанным машинным маслом.
Как смонтировать твердотопливный котел, смотрите на видео:
Конструктивные особенности
ТТ-котлы бывают 2-х типов.
Виды:
- Малогабаритные модели. Представляют собой печи с небольшой емкостью под топливо. Хранилище встраивают в верхнюю или боковую часть установки по типу комбайна.
- Крупногабаритные котлы. Это топливники, совмещенные с хранилищем бункерного типа. Чаще всего это отдельная комната, оборудованная под дровник, склад.
В первом случае длительный автономный обогрев дома исключен. Горючего в бункере хватает на 6-9 часов в зависимости от типа деревоматериалов. Во втором случае запасы топлива ограничены только объемом хранилища (котлы полностью автономны).
Отличия от полуавтоматики
При использовании ТТ-котлов можно регулировать температуру на выходе. Автоматические установки в отличие от механических позволяют контролировать не только частоту вращения цилиндров и лопастей при заборе топлива, но и настроить периодичность его загрузки.

Автоматические установки позволяют регулировать периодичность загрузки топлива.
ТКДГ – автономное оборудование, исключающее непосредственное участие человека в контроле процессов горения. Работа установок может быть полностью автоматизирована, начиная от розжига и заканчивая температурными режимами, например, на случай длительной командировки.
ТКДГ способны регулировать температуру теплоносителя (в системе отопления), окружающей среды (для защиты от перегрева). Оптимальный режим работы настраивают с помощью пульта. Если встроить в модуль GSM-приемник, агрегатом можно будет управлять, используя смартфон.
Классические котлы
Устройства стандартного типа предназначены для сжигания одного типа сырья. Топливо подается в печь вручную или автоматически. Интенсивность горения и температуру придется контролировать при использовании дров. Сырье предварительно рубят, колют. Процесс автоматизируют путем установки электроножа в отсек между бункером и камерой сгорания. Торф и уголь 20% влажности измельчают до нужной фракции.
Хранилище при подаче топлива засоряется пылью. Это может вывести из строя снек. Чтобы избежать поломок, в хранилище засыпают уже измельченное топливо. Уголь обязательно сортируют для предотвращения деформации ходовых частей.
Комбинированные
В продаже есть модели котлов, пригодные для сжигания дров, угля и пеллет одновременно. Эту особенность следует учитывать жителям тех районов, где цены на энергоносители зависят от сезона. Так, традиционные дрова можно заменить более доступными материалами. В условиях сурового климата предпочтение отдают дешевым торфу, углю, пеллетам. Для отопления домов в средней и южной полосе России подойдут как дрова, так и измельченное сырье.

Комбинированные котлы пригодны для сжигания дров и угля.
Универсальный тип автоматизированных котлов чаще всего используют в отопительных системах домов. Днем сжигают дрова или уголь, а на ночь установку настраивают на электропитание (в целях экономии). Комбинированные котлы рекомендуют к покупке и при больших сезонных перепадах температур.
Использование дров, угля или гранул по-разному сказывается на КПД оборудования. Так, летом помещения могут обогреваться спрессованными опилками, в межсезонье – торфом, а в холода – дровами из березы, например. Для этого в конструкции котлов предусматривают несколько бункерных отсеков и дополнительную горелку, теплообменник (аккумулятор) для подключения к системе отопления.
Пеллетные
В котлах данного типа используют спрессованные гранулы из опилок, стружки. Вместо пеллетных кассет в хранилище засыпают щепы и сельскохозяйственные отходы (лузгу, солому). Винтовая часть перерабатывает бак топлива за 3-7 дней. Несмотря на длительную автономность работы, КПД котлов низкий (50-90%) и во многом зависит от качества гранул. Они должны быть сухими, крепко спрессованными и содержать не менее 50% твердой щепы.
Пиролизные
Котлы данного типа вырабатывают энергию за счет температурного разложения топлива. В печи горит не само сырье, а газ, вырабатываемый в результате процесса пиролиза. Конструкцию ТКДГ оснащают встроенным теплообменником. Время автономной работы увеличивается до 1 месяца. В качестве горючего подойдет любое твердое топливо, но с учетом производителя и модели. В пиролизных установках можно настроить авторозжиг и удаленное управление.

Пиролизные котлы используют энергию разложения топлива.

























































